Zum Inhalt wechseln
  • Büro
  • Kompetenzen
  • Projekte
  • Büro
  • Kompetenzen
  • Projekte
FZJ-01-Visualisierung
FZJ-02-Foto außen
FZJ-03-Foto innen
FZJ-04-Foto Dach
FZJ-05-Ansicht 1
FZJ-06-Ansicht 2
FZJ-07-Ansicht 3
FZJ-01-Visualisierung FZJ-02-Foto außen FZJ-03-Foto innen FZJ-04-Foto Dach FZJ-05-Ansicht 1 FZJ-06-Ansicht 2 FZJ-07-Ansicht 3

Freikühler Forschungszentrum Jülich

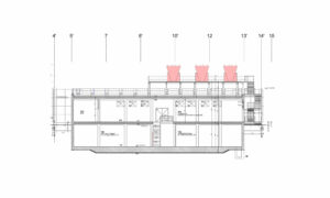
Der Neubau ist Bestandteil des „Jülich Supercomputing Centre“ und dient der Unterbringung von Freikühlern, über die die Wärme der Supercomputer abgeführt wird.

Die Rückkühler sind auf der Dachfläche des Gebäudes installiert, die zugehörige Technik befindet sich im Erdgeschoss und dem Keller. Das 2-geschossige Gebäude wird unmittelbar an die nordöstliche Fassade der bestehenden Rechnerhalle angebaut. Das Gebäude verfügt über einen ebenerdigen Zugang, im Untergeschoss gibt es einen Übergang zum Bestandsgebäude.

ProjektnameFreikühler Forschungszentrum Jülich
ProjektartNeubau
NutzungFreikühler
OrtJülich
Zeit2019 – 2021
StatusFertiggestellt
Fläche1.200 m² BGF
LPH1 – 8
BauherrForschungszentrum Jülich GmbH
Copyright © GPG mbH
  • Impressum
  • Datenschutz
  • Kontakt
  • Impressum
  • Datenschutz
  • Kontakt
  • Impressum
  • Datenschutz
  • Kontakt
  • Impressum
  • Datenschutz
  • Kontakt
Copyright © GPG mbH
  • Büro
  • Kompetenzen
  • Projekte
  • Büro
  • Kompetenzen
  • Projekte
  • Impressum
  • Datenschutz
  • Kontakt
  • Impressum
  • Datenschutz
  • Kontakt