Die „Rohmühle“ auf dem Gelände der ehemaligen Bonner Zementfabrik ist ein Industriedenkmal aus der Mitte des 19. Jahrhunderts, das 2005 zu einem Bürogebäude mit Gastronomie im Erdgeschoss umgebaut wurde.
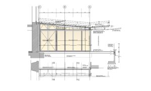
Im Zuge der Neugestaltung der Gastronomie 2020 sollte diese auf der Rheinseite durch einen Anbau erweitert werden. Es entstand ein Wintergarten, der vor allem in den saisonalen Übergangszeiten, aber auch im Winter einen geschützten Gastronomiebetrieb ermöglicht. Das Gebäude verfügt über einen Vollwärmeschutz und eine Fußbodenheizung, für deren Wirksamkeit das durchlaufende Pflaster der Terrasse eigens auf eine schmale Belagstärke zugeschnitten wurde. Mit umlaufend öffenbaren Glasfaltwänden und einem vollflächigen Sonnenschutz spendet der Wintergarten im Sommer Schutz vor Sonne, Regen und Wind.
Vor dem Wintergarten entstand eine neue Terrassenfläche, die sich zu der zur Promenade hinabfallenden Grünfläche durch einen Sockel mit farbig gestalteten Betonfertigteilen und einer Ganzglasbrüstung absetzt. In der öffentlichen Grünfläche wurde die Skulptur „Mother Earth“ des nordamerikanischen Künstlers Barton Rubenstein aufgestellt.
Der auf der Nordseite liegende Zugang erhält in einem zweiten Schritt einen neuen Vorbau, die Außenanlagen werden auch hier im Zuge des Umbaus mit einer neuen Stufenanlage und mit neuem Pflaster angepasst.
Als Materialien werden grundsätzlich Glas und Stahl verwendet, die faltbaren Glaswände sind konstruktionsbedingt als thermisch getrennte Aluminiumelemente ausgeführt.